铝锭报价
|
EN
返回
幕墙 >>
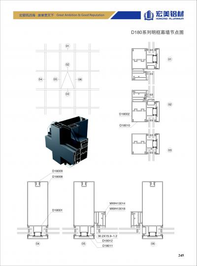
D180系列套钢幕墙