铝锭报价
|
EN
返回
幕墙 >>
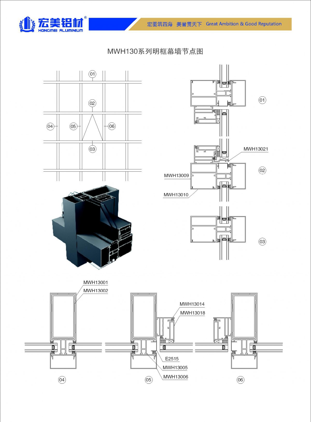
NWH130系列幕墙