铝锭报价
|
EN
返回
隔热门窗系列 >>
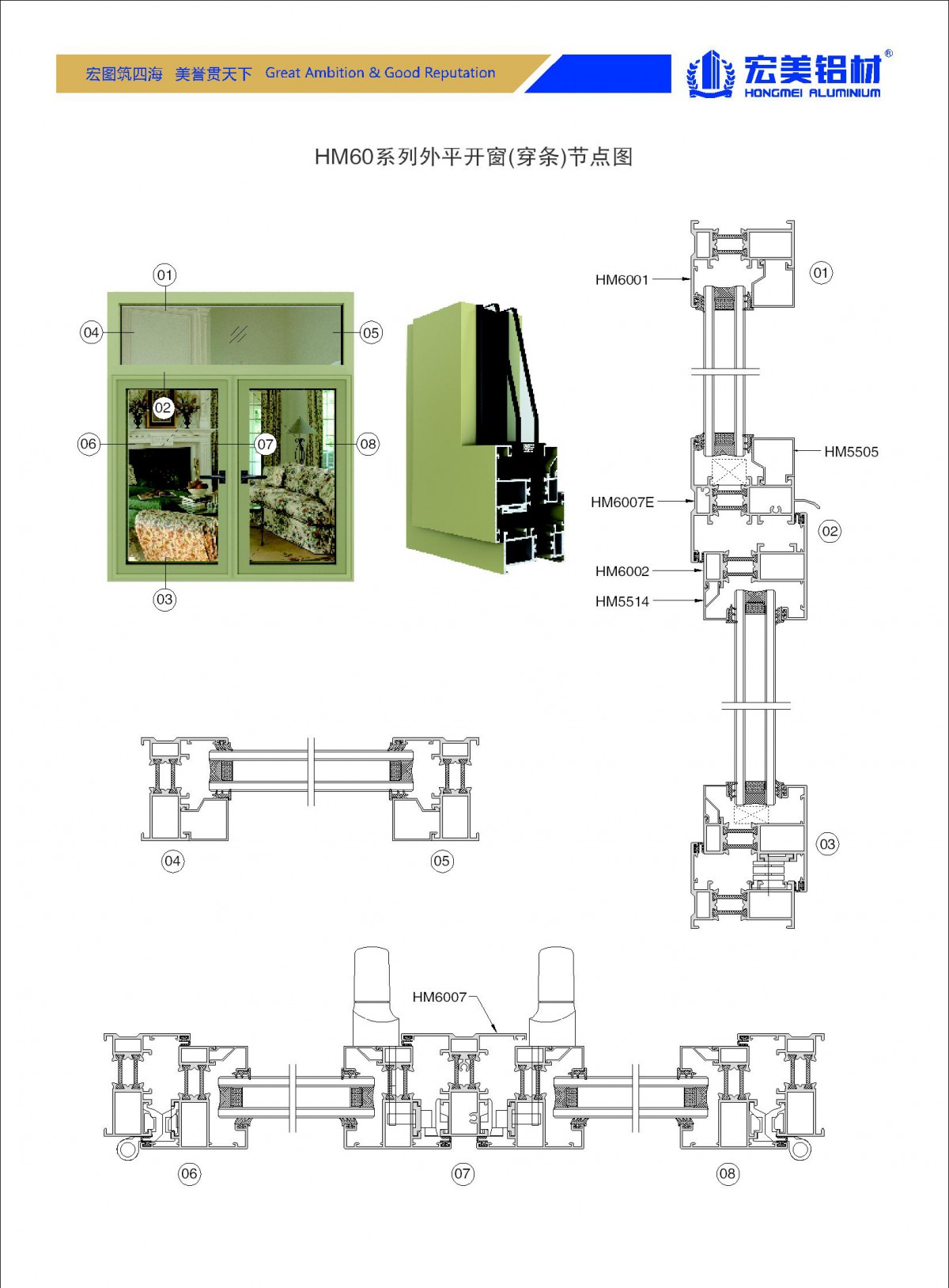
HM60系列穿条平开窗