铝锭报价
|
EN
返回
平开窗系列 >>
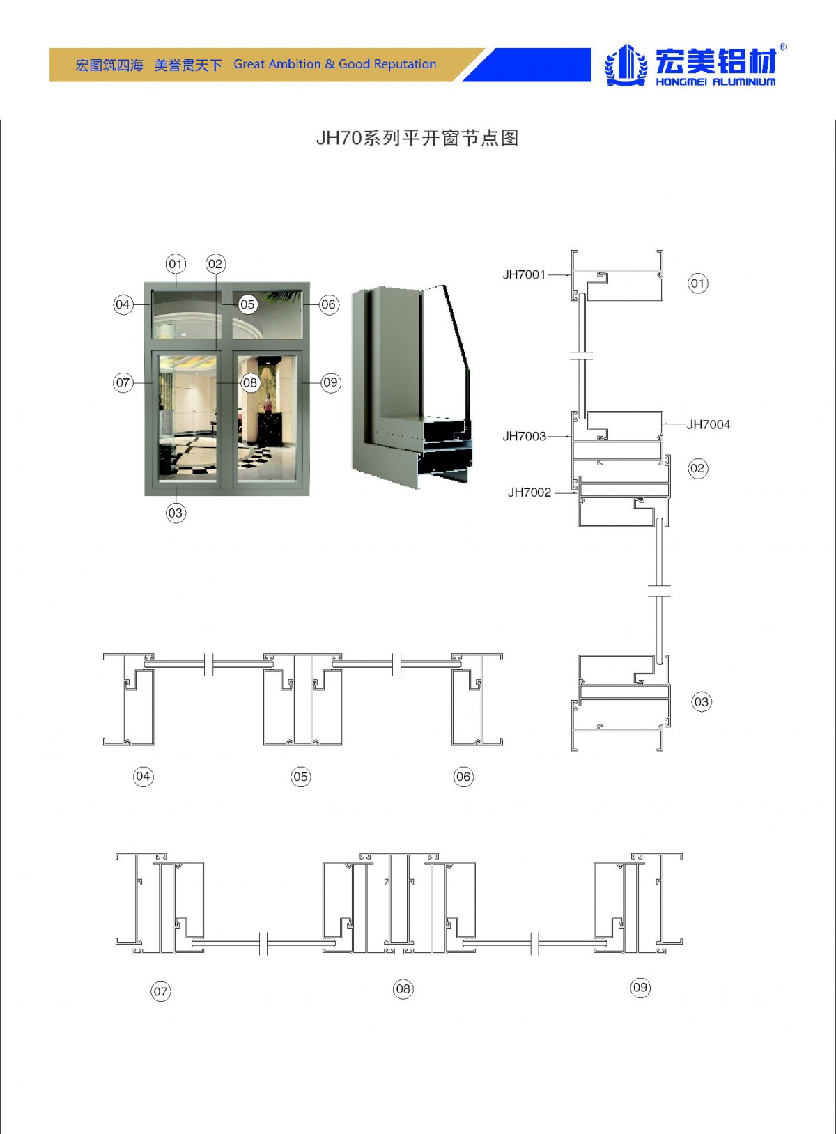
JH70系列平开窗